德國工業(yè)4.0智造

  • 健康環(huán)保
  • 免費服務
  • 三年質保
  • 本地體驗
首頁 > 案例中心 > 現代 > 現代簡約

現代簡約 2291

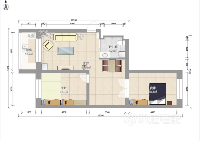
67.4㎡#兩室一廳一衛(wèi)#現代

案例介紹
吉林省 - 吉林市 - 豐滿區(qū) 紫金江尚


                       

戶型圖


                               

                               

                               

                               

                               

                               

                               

                               

                               

                               
吉林省-吉林市
設計經驗10 作品9
  • 現代
  • 歐式
  • 簡約
  • 硬裝設計
  • 軟裝配飾設計

免費申請設計

設計師上門服務全程免費,禁止以任何形式收取費用。

請輸入驗證碼

驗證碼輸入錯誤