德國工業(yè)4.0智造

  • 健康環(huán)保
  • 免費服務
  • 三年質保
  • 本地體驗
首頁 > 案例中心 > 地中海 > 順悅居兩居

順悅居兩居 5242

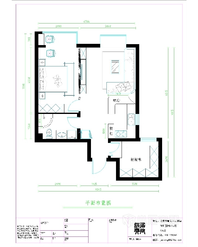
63㎡#兩室一廳一衛(wèi)#地中海

案例介紹
北京市 - 順義區(qū) 馬坡鎮(zhèn)順悅居

業(yè)主是一對年輕的夫婦,性格開朗、熱情,女業(yè)主是個心思細膩的人,對地中海風格情有獨鐘。因為戶型較小,所以充分利用所有區(qū)域,整體效果非常好,只是像素有些渣。

戶型圖

入戶位置,地面菱形鋪貼,配合彩色波打線,頂部石膏線和地中海風情吸頂燈。
客廳黃色墻面、藍色電視柜
客廳
主臥門、衛(wèi)生間拱形門
主臥
次臥榻榻米
次臥窗戶
衛(wèi)生間
衛(wèi)生間淋雨區(qū)域砌筑
開放式廚房
北京市-順義區(qū)
設計經驗4 作品12
  • 現代
  • 簡約
  • 硬裝設計
  • 軟裝配飾設計

免費申請設計

設計師上門服務全程免費,禁止以任何形式收取費用。

請輸入驗證碼

驗證碼輸入錯誤